Modern Gallery
Zgłoś naruszenie...
Wybierz jedną z poniższych opcji.
Ten komentarz dotyczy mnie lub znajomego:
atakuje mnie,
atakuje znajomego.
Komentarz dotyczy czegoś innego:
spam lub oszustwo,
propagowanie nienawiści,
przemoc lub krzywdzące zachowanie,
treść o charakterze erotycznym.
Napisz
PANEL

przygodziczka

wpisy na blogu

początki

Blog:  przygodziczka
Data dodania: 2011-10-26
wyślij wiadomość

Witam

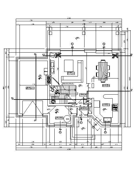
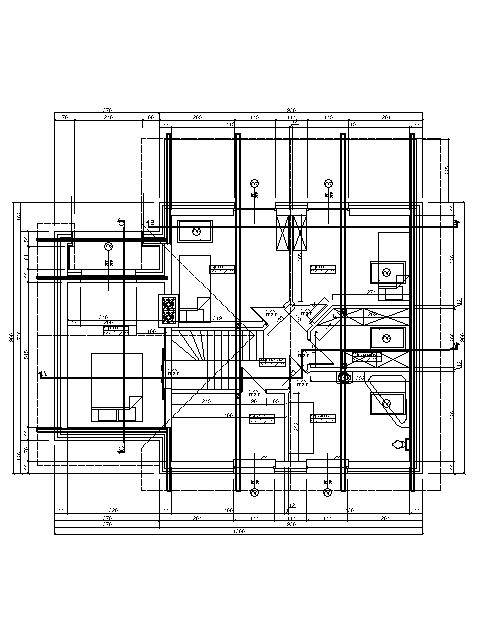
czekając na projekt instalacji gazowej, zamieszczam pare rysunków domu który mam zamiar wybudować.

Proszę o opinie.

 

mojabudowa.pl - blog budowlanymojabudowa.pl - blog budowlany

mojabudowa.pl - blog budowlany

mojabudowa.pl - blog budowlany

mojabudowa.pl - blog budowlany

mojabudowa.pl - blog budowlanymojabudowa.pl - blog budowlany

zdjęcia działki gdzie ma sie to POJAWIĆmojabudowa.pl - blog budowlany

mojabudowa.pl - blog budowlany

mojabudowa.pl - blog budowlany

blog budowlany - mojabudowa.pl

przygodziczka Wyślij wiadomość do autora OBSERWUJ BLOGA
statystyki bloga
Odwiedzin bloga: 796
Komentarzy: 0
On-line: 9
Wpisów: 1 Galeria zdjęć: 10
Projekt DOMEK
BUDYNEK- dom wolno stojący , parterowy z poddaszem bez piwnicy
TECHNOLOGIA - murowana
MIEJSCE BUDOWY - Przygodzice
ETAP BUDOWY - Brak
ARCHIWUM WPISÓW

Inne blogi dla projektu DOMEK:
majolika.mojabudowa.pl - wpisów: 530
michal85.mojabudowa.pl - wpisów: 468
arlenka.mojabudowa.pl - wpisów: 436
msz-n.mojabudowa.pl - wpisów: 418
ekodom.mojabudowa.pl - wpisów: 413
piasek.mojabudowa.pl - wpisów: 339
albatros2.mojabudowa.pl - wpisów: 279
tysia827.mojabudowa.pl - wpisów: 263
seven.mojabudowa.pl - wpisów: 232
zremba.mojabudowa.pl - wpisów: 216
lusiek.mojabudowa.pl - wpisów: 197
wilczyca32.mojabudowa.pl - wpisów: 193
czteryem.mojabudowa.pl - wpisów: 189
zabki2015.mojabudowa.pl - wpisów: 187
tomasznowak29.mojabudowa.pl - wpisów: 186
krzycho63.mojabudowa.pl - wpisów: 185
dorka-roman.mojabudowa.pl - wpisów: 174
bajkowydworek.mojabudowa.pl - wpisów: 165
domwpiaskowcu.mojabudowa.pl - wpisów: 162
piekar.mojabudowa.pl - wpisów: 156
ewaiadam.mojabudowa.pl - wpisów: 146
wybudujeadasia.mojabudowa.pl - wpisów: 144
miszszel.mojabudowa.pl - wpisów: 144
dom-azyl.mojabudowa.pl - wpisów: 144
sloneczna.mojabudowa.pl - wpisów: 143
perelka2009.mojabudowa.pl - wpisów: 141
patrycjacha.mojabudowa.pl - wpisów: 139
aaaa-meble.mojabudowa.pl - wpisów: 137
marzenianasze.mojabudowa.pl - wpisów: 136
asiakrzysztof.mojabudowa.pl - wpisów: 134
pszczolka.mojabudowa.pl - wpisów: 133
pretaporter.mojabudowa.pl - wpisów: 133
zacisze.mojabudowa.pl - wpisów: 132
wersjade.mojabudowa.pl - wpisów: 131
murekzone.mojabudowa.pl - wpisów: 130
kadmax-bw.mojabudowa.pl - wpisów: 130
pogodny1ja.mojabudowa.pl - wpisów: 125
blue--bell.mojabudowa.pl - wpisów: 125
fryzjereczka.mojabudowa.pl - wpisów: 124
dominka76.mojabudowa.pl - wpisów: 124
shagga80.mojabudowa.pl - wpisów: 123
elusiatomek.mojabudowa.pl - wpisów: 123
damariko.mojabudowa.pl - wpisów: 123
szarobialy.mojabudowa.pl - wpisów: 122
ligota.mojabudowa.pl - wpisów: 122
ancia9.mojabudowa.pl - wpisów: 121
alaimar.mojabudowa.pl - wpisów: 120
wierzby.mojabudowa.pl - wpisów: 118
wenaplus.mojabudowa.pl - wpisów: 117
magnollia.mojabudowa.pl - wpisów: 117
wymarzony.mojabudowa.pl - wpisów: 116
oleczka1986.mojabudowa.pl - wpisów: 116
jessicaa.mojabudowa.pl - wpisów: 116
cyprysowo.mojabudowa.pl - wpisów: 115
anetta16.mojabudowa.pl - wpisów: 115
magnat100.mojabudowa.pl - wpisów: 113
andzias77.mojabudowa.pl - wpisów: 110
beatka80.mojabudowa.pl - wpisów: 109
asiagrzesiek.mojabudowa.pl - wpisów: 105
edyta1988d.mojabudowa.pl - wpisów: 102
ustronny1.mojabudowa.pl - wpisów: 101
milionwminute.mojabudowa.pl - wpisów: 101
feriza.mojabudowa.pl - wpisów: 101
ezelazny.mojabudowa.pl - wpisów: 101
elik2014.mojabudowa.pl - wpisów: 101
monikaiszymon.mojabudowa.pl - wpisów: 100
podkampinosem.mojabudowa.pl - wpisów: 99
endialdi.mojabudowa.pl - wpisów: 99
serce.mojabudowa.pl - wpisów: 98
seba1.mojabudowa.pl - wpisów: 97
homekoncept32.mojabudowa.pl - wpisów: 96
gwatemala.mojabudowa.pl - wpisów: 96
tictac.mojabudowa.pl - wpisów: 95
nowak110.mojabudowa.pl - wpisów: 95
wiolettapiotr.mojabudowa.pl - wpisów: 94
widoq.mojabudowa.pl - wpisów: 94
nyveien.mojabudowa.pl - wpisów: 94
aleksander2.mojabudowa.pl - wpisów: 94
karolineczka2.mojabudowa.pl - wpisów: 93
budy--grzybek.mojabudowa.pl - wpisów: 93
kingailaki.mojabudowa.pl - wpisów: 91
naszemiejsce.mojabudowa.pl - wpisów: 90
mwas2016.mojabudowa.pl - wpisów: 90
magkul.mojabudowa.pl - wpisów: 90
m-110b.mojabudowa.pl - wpisów: 90
kofola35.mojabudowa.pl - wpisów: 90
jelonek-rex.mojabudowa.pl - wpisów: 90
rozwiń
Statystyki mojabudowa.pl
Liczba blogów: 68100
Liczba wpisów: 223121
Liczba komentarzy: 902956
Liczba zdjęć: 682419
Liczba osób online: 89
usuń reklamy
Top 100 blogów

sprawdź listę 100 najczęściej odwiedzanych blogów.

sprawdź teraz